Hoge akoestische isolatie voor een rustige omgeving
De RS, - 51 dB akoestische deuren van G-Block bieden een ideale oplossing voor omgevingen die een hoogwaardige geluidsisolatie vereisen. Ze zijn ontworpen om te voldoen aan de eisen van professionele ruimtes en garanderen absolute rust.
Belangrijkste kenmerken
De akoestische deuren in deze serie zijn gecertificeerd voor hun hoge geluidsisolerende prestaties. Ze zijn verkrijgbaar in enkele en dubbele vleugelversies, met standaardmodellen en speciale maten voor maximale aanpasbaarheid.
Technische gegevens
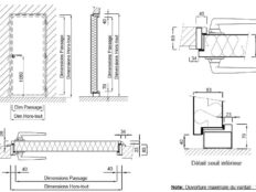
- Beschrijving : 83 mm dikke akoestische deur, met metalen frame en vleugel in 1,5 mm dik gepolijst plaatstaal.
- Interne vulling : Geluiddempend complex voor maximale isolatie.
- Sluiting : Geleidelijk strakker wordende handgreep voor hermetische sluiting.
- Oppervlaktebehandeling : Synthetische primer (overschilderbaar) voor een afwerking op maat.
- Warmtedoorgangscoëfficiënt : Ud = 1,89 W/m²K
- Akoestisch certificaat : Geldig voor de deur zonder extra accessoires.
- Cirkelvormige oculus : Optioneel. Niet aanbevolen voor buitendeuren vanwege het risico op condensatie.
| Eén blad (breedte x hoogte mm.) | ||
| Model | Afm. doorgang | Totale afmetingen |
| RS3/01 | 800x2000 | 880x2110 |
| RS3/02 | 900x2000 | 980x2110 |
| RS3/03 | 1000x2000 | 1080x2110 |
| Dubbel blad (breedte x hoogte mm.) | ||
| Model | Afm. doorgang | Totale afmetingen |
| RS3/21 | 1400x2000 | 1480x2110 |
| RS3/22 | 1600x2000 | 1680x2110 |
| RS3/23 | 1800x2000 | 1880x2110 |
| RS3/24 | 2000x2000 | 2080x2110 |
| Driedubbele deur (800+600) voor RS3/21 | ||
Accessoires en opties
De Acoustic Series - 51 dB biedt een breed scala aan accessoires om aan al uw specifieke behoeften te voldoen. Of het nu gaat om speciale afmetingen of bijzondere afwerkingen, deze deuren passen zich perfect aan uw omgeving aan.
Neem contact met ons op voor meer informatie
Bel ons nu of neem contact met ons op voor meer informatie over de Acoustic Series - 51 dB akoestische deuren. Onze experts staan klaar om je te helpen en al je vragen te beantwoorden.









